Your privacy is important to us. This website uses cookies to enhance user experience and to analyze performance and traffic on our website. By using this website, you acknowledge the real-time collection, storage, use, and disclosure of information on your device or provided by you (such as mouse movements and clicks). We may disclose such information about your use of our website with our social media, advertising and analytics partners. Visit our Privacy Policy and California Privacy Disclosure for more information on such sharing.
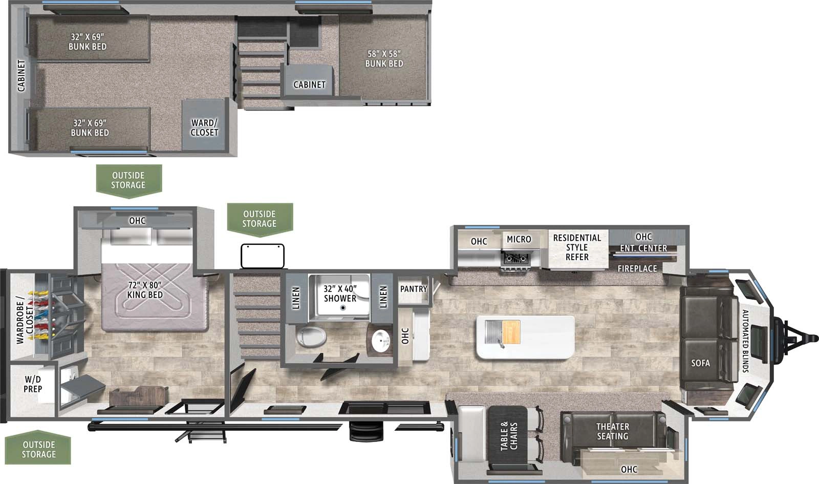
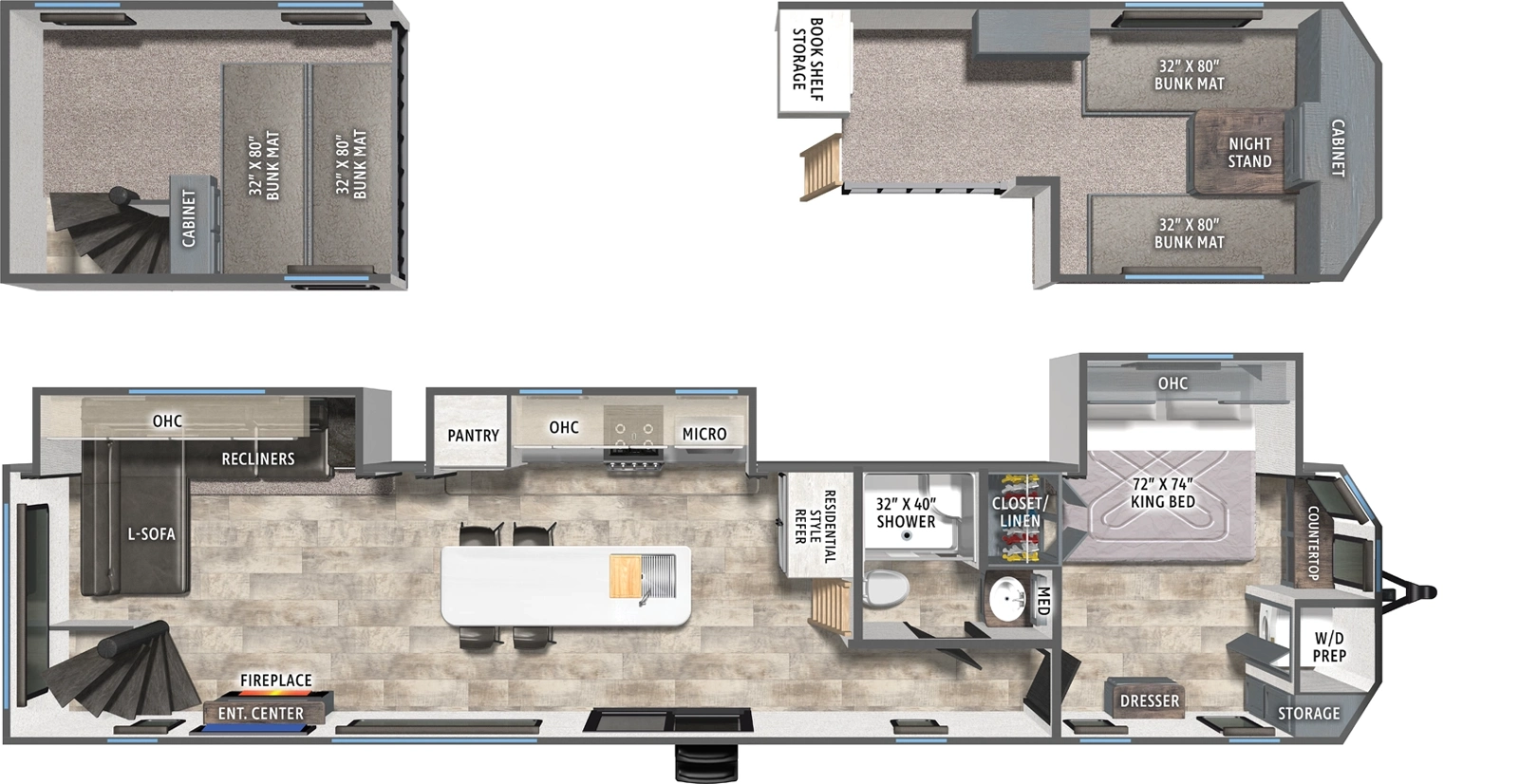
Enjoy vacation comfort in your Puma Vista Destination Model whether for a weekend or a week at the lake, in the mountains, or at your favorite campsite. The best in leisure living with several floorplans; two bedroom options, and a den option to accommodate whatever your family needs are. Residential style furnishings and a large master bedroom with a king size bed to ensure a comfortable and relaxing getaway.
Please sign up below if you would like to receive notifications when we make updates to this brand. Or, if you only want updates on a particular floorplan, you can select to be updated on each one individually.